Banner Elk Concept Home
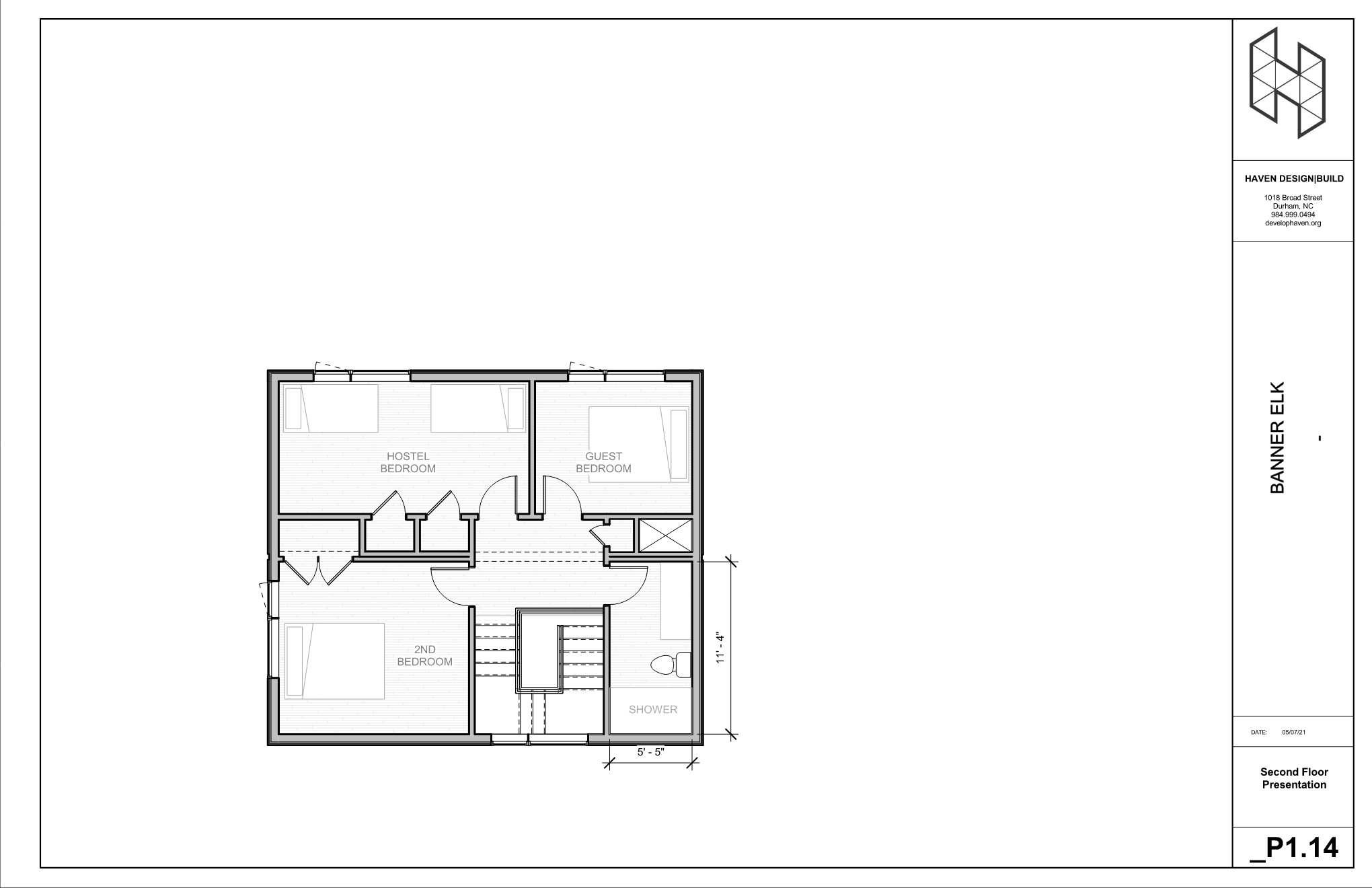
The Banner Elk conceptual modular home was created by Haven Design to explore the idea of creating a custom modular home located in the mountains of North Carolina. It was designed to be shipped in multiple different segments and combined on site, over a foundation.
Banner Elk, NC
Concept Only
Custom New Construction
2,644 Heated Sq. Ft.
4 Bedrooms, 3.5 Bathrooms








