Dupree Duplex+
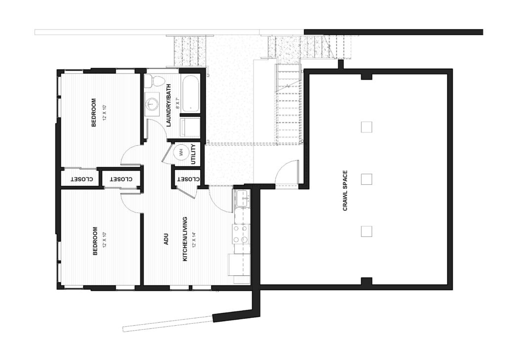
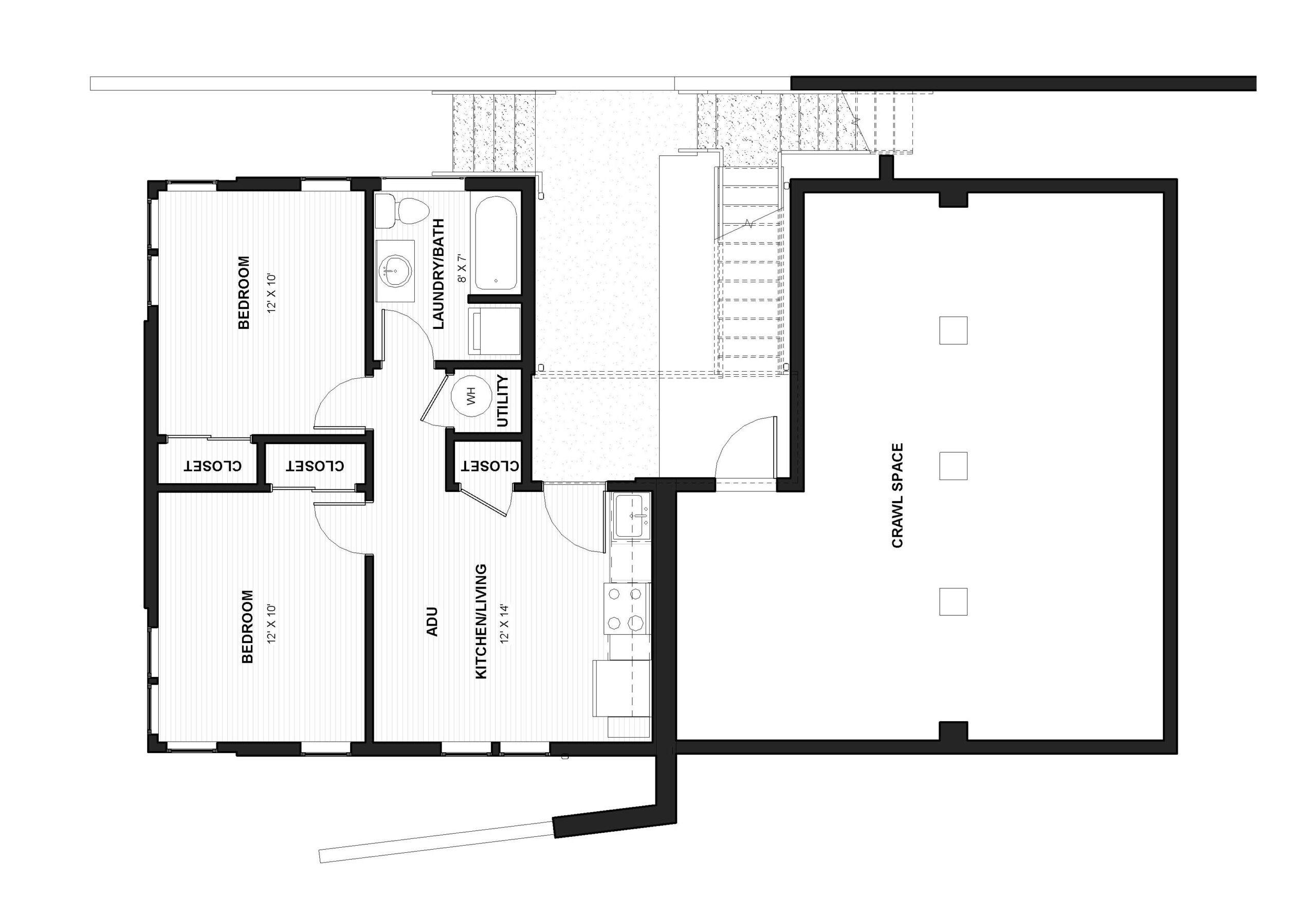
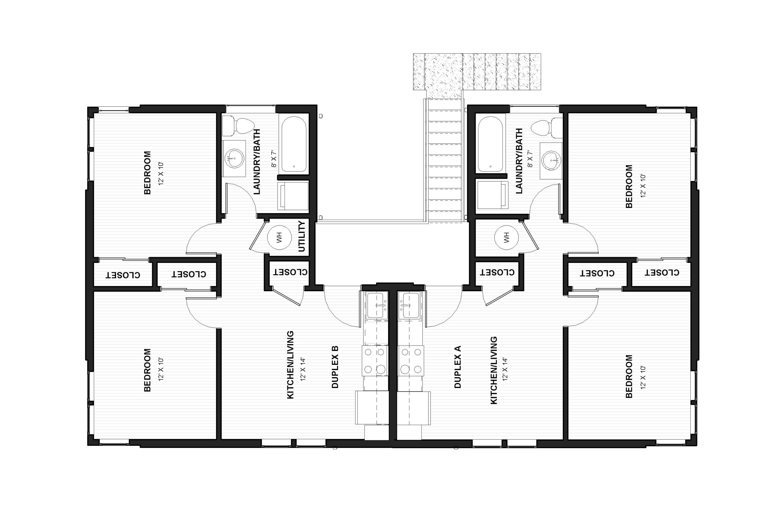
The Dupree Project introduces a modern, efficient infill development in Durham’s Urban Development Tier. The design integrates a duplex with an accessory dwelling unit (ADU) to create three new residences on a compact lot. This project maximizes livability and affordability while respecting the scale and character of the neighborhood and adjacent university.
Durham, NC
In Permitting
Compact & Walkable: Designed for urban living in a connected neighborhood adjacent to North Carolina Central University (NCCU)
Durability & Efficiency: Fiber cement siding, black vinyl windows, efficient systems
Community Impact: Adds density, supports affordability, dedicates housing for professors, and aligns with Durham’s urban growth vision
1,650 Total Sq. Ft.
3 New Residences: 2 Duplex Units & 1 ADU



